实拍6套农村自建房,户型方正大气超实用,2000块的院子漂亮极了
实拍6套农村自建房,户型方正大气超实用,2000块的院子漂亮极了
这几天分享的农村建房案例,大家都非常喜欢,但是从评论、留言中发现几个问题。
一个是大家觉得25、30万建不出来2、3层的房子,但是不知道大家有没有仔细看文章。农村建房,毛坯也就1000每平左右,地是自己的,建房肯定便宜。当然有些地方农村比三线城市还好,那建房肯定贵。
第二个是很多沿海的网友,嘲讽内的建房不好看。现在内地觉得很漂亮的农村小洋楼,在江浙、福建等的农村,已经过时好几年了。那你们来说说今天的这些!
另外一个是院子的问题,直接全部硬化确实有点浪费,但是花太多钱多老百姓来说又增加太多经济压力,那么院子要怎么弄呢?
今天这6个非常漂亮的农村自建房案例,也许可以给打算建房的朋友,以及建好了房子,院子还没做的朋友们很大的参考意义。

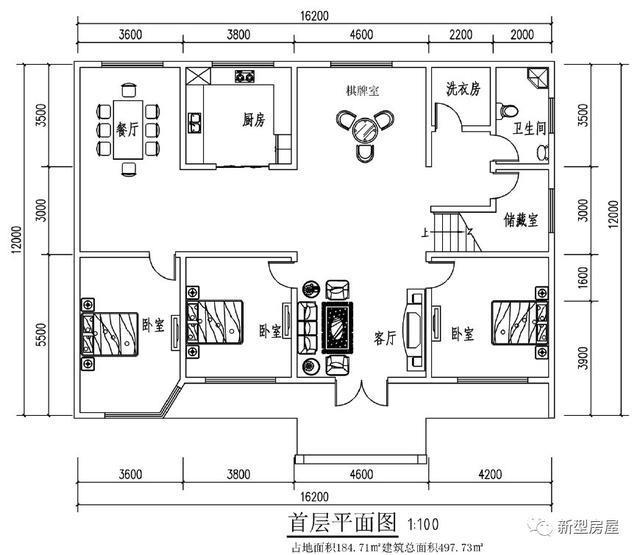
首先是第一套,非常时尚的二层小别墅,开间12x10米,毛坯主体造价在25万左右。
有车库、有阳台、有露台,一层做了防潮层,上水系统是将水塔安装在楼顶小平台上,还有太阳能热水器,农村最实用的二层小洋楼。
再来看原著,硬化一部分停车、晾晒都非常方便,然后剩下部分种种花草,再种上一些桂花等易成活,观赏性也强的树木,经济实用又好看,整个下来不过2000块左右。

再来看第二套,最时尚的3层农村自建房,主体就花了接近50万,装修好的话就是100多万了。
农村最爱的红色坡屋顶,你是不是一样被美到了!
门斗非常大,上面作为一个露台,用作日常休息,铁艺护栏精致美观。三层露台则作为屋顶花园兼晾晒区,特别是顶层主卧的阳光房和一层的挑空客厅,绝对是现在建房90后的最爱。

再说院子,没有车库,所以院子有6成面积硬化,农村逢年过节客多,而且现在农村家庭汽车也越来越普及,一个大院子可以很好解决停产问题。
剩下面积绿化,同样种草、种树,不过我们可以看出种草皮的话,到了冬季就不好看了,可以适当混种一些常绿的花草。

接下来是第三套,三层带坡屋顶阁楼层的户型,同样方方正正,非常大气,最重要的是防盗窗也做的非常漂亮,这套是河北石家庄网友的晒房。
唯一的不足就是环境不太好,雾霾有点重,没有看到农村应有的蓝天白云。

因为临马路地小,院子就很小了,那我们就来看看户型布局吧。一层进门小客厅,有单独的洗衣房,还有储藏室。
要是左侧卧室加个卫生间就非常完美了。

二层布局跟一层差不多,只是去掉了厨房和餐厅。

3层去掉了客厅和一个卧室,多了一个大露台,要是布局最大的缺憾就是卫生间有点少。

接下来是第四套,兄弟双拼,左右对称的布局,小小的房子因为双拼而变得非常霸气。
高贵的黄配以淡雅的棕色,惊艳了世人。袁总同样是绿化+硬化,不过这个院子还是比较有品味的,院子一圈都是小罗汉松等景观植物。

两兄弟一起的宅基地还没第3套独户 的大,所以一层昨晚日常生活功能区,没有设计卧室。

二层则作为主要起居去,有2卧室。
南面做主卧,北面做儿童房,可以加小书桌等,我们都是认真学习的好孩纸!

三层还有一个卧室,一露台。

第五套则是小别墅的设计,纯粹的白,带给人不一样的美感体验。
层次的小院,全部种上小灌木,一年四季常绿!

第六套则是比较亲民的农村自建房户型,因为地基比路低2米多,干脆做个地下室,车库、工作间全在里面,相信很多人会喜欢这样的布局。

房子位于湖南,是2013年建的,主体带外装花了30万左右,不过放到现在估计要40万往上。

不过最吸引人的,还是这个3万多建造的游泳池,说实话,现在农村建游泳池的家庭也越来越多了!

6套农村自建房,都非常漂亮,你最喜欢哪一套?
大家记得关注本号,有啥想说的,评论区留言一起讨论哦!
标签:
