古田心天宇万象国际,武汉不限购小户型,地铁口现房公寓
古田心天宇万象国际,武汉不限购小户型,地铁口现房公寓
天宇万象国际总体规划约8.4万方,定位为全能型MINI城市综合体 ,项目配备区域LOFT写字楼、真正的城市主干道商铺、小投资高公寓、高舒适度、高投资价值住宅。项目紧邻轻轨古田二路站,北侧临近武汉“西大门”的快速放射线之一——长丰大道。
天宇万象国际南接双向四车道南泥湾大道,东临古田生态新城,西部为汇丰企业总部商务集群。

天宇万象国际是由武汉市时代天宇置业有限公司倾心打造的全优之城,赋能都市生活体项目。项目配备区域备受青睐的3.6米小复式公寓产品、城市大道商铺、以及高舒适度的精英奢华住宅。总规划6.3万㎡,一栋3万方高层住宅,一栋2.3万方soho公寓以及0.7万方商业裙楼组成。
邀请全球知名园林设计公司贝尔高林对项目进行园林规划;天宇集团始终关注每一位客户的居住体验,此次联袂全国物业百强之首——万科物业,倾天宇之全心全意,为每一位业主提供最尊贵服务。

项目整体坐落于26万方古田生态新城,位处黄金T字价值中轴线。古田生态新城是政府规划重点开发区及功能区,未来商业商务扎堆开发,古田二路更定义为新区未来商业商务中心。
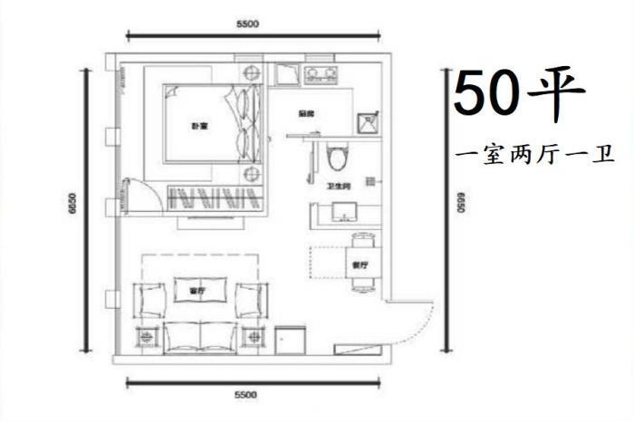
最新动态:天宇万象国际目前有公寓在售,自带天然气!均价16000元/平,建筑面积约50-105平,敬请关注!
【在售户型】
天宇万象国际B4户型1室2厅1卫建筑面积:50平米

天宇万象国际B2户型2室2厅1卫建筑面积:76平米

天宇万象国际B3户型3室2厅1卫建筑面积:103平米

天宇万象国际B1户型3室2厅1卫建筑面积:105平米
【周边配套】
天宇万象国际毗邻汉口中心城区生态商务办公区“汇丰企业总部”,商业云集,凯德广场、中百仓储、麦德龙、南国西汇等分布左右;周边交通配套赫然成熟,距二环线、三环线均2~3公里距离,出行便捷高效。

学校:长丰小学、易家墩小学、辛家地小学、武汉市七十九中学(南门)、武汉市四十三中
商业:凯德广场、中百仓储、麦德龙、南国西汇
医院:硚口长丰医院
银行:交通银行、招商银行、建设银行、工商银行
【交通状况】
项目北侧临近武汉“西大门”的快速放射线之一——长丰大道,快速串联王家墩CBD,车行15分钟抵达,武汉中央商务区后花园,掌控城市发展资源。项目接泊轻轨一号线,地铁14号线(规划)双地铁。占交通大道古田二路,串联二三环,连接轨道,通达全城。作为未来城市生活主场区,宜家、麦德龙、凯德西城,三大城市级商业体环绕。区域内品牌住宅云集,高知人群聚集,致力于打造中央生态居住区

公交:乘坐311路;328路;548路;568路;589路;657路;791路到古田二路长丰乡站下车步行200米即到项目;329路;541路;;736路;792路到长丰大道都市工业园下车步行300米可到项目
地铁:轻轨1号线到古田二路站;地铁13号线(待建)
公路:二环线,三环线,城市主干道古田二路、长丰大道、南泥湾大道,三横两纵复合交通

【楼盘优势分析】
一:古田不限购现房,公寓的价格住宅品质的享受。
二:全景落地窗,视野更为开阔,自带天然气地铁公寓。
三:50到150平面积段,居家户型设计,满足你的多种需求。

售楼地址:硚口区古田二路(汇丰企业总部对面)
售楼热线:1507-1267-073天宇万象国际刘经理
开发商直销来电预约看房享受最低价购房优惠
标签:
