惠州南站附近有什么楼盘
惠州南站附近有什么楼盘
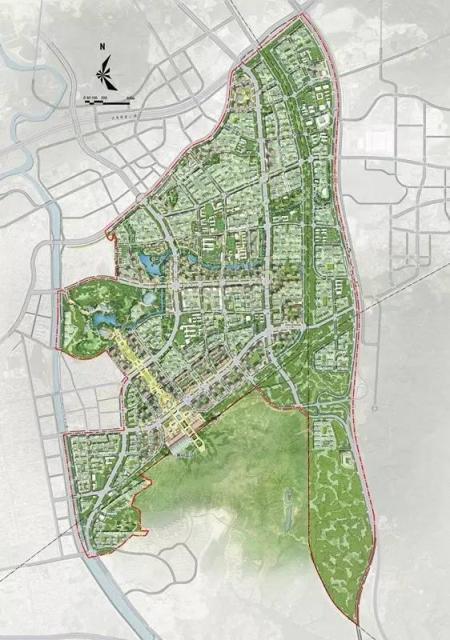
惠州南站新城位于惠阳中心城区东部,惠阳区新桥片区内,北至白云路、东至惠大高速、西至淡澳河、南至亚公顶山,规划控制面积16.39平方公里,包含惠州南站新城规划区、亚公顶森林公园规划区两大区域。以厦深铁路惠州南站客运枢纽、城市核心景观中轴线、古屋河都市景观、综合购物公园和现代物流园等项目为重点,拉开惠州南站新城建设空间框架。

南站新城片区控制规划图
惠阳“城市客厅”如何打造?
惠州南站新城组团将强化对外交通功能,完善以惠州南站为枢纽,以惠大高速公路、深汕高速公路、白云路等构成的对外交通体系。依托惠州南站、体育文化公园、古屋河湿地沿线地区和亚公顶城市森林公园等景观资源,以绿色生态为标杆及要求,以智能制造、绿色产业为推动力,打造成生态智慧新城的未来城市,构建地域特色鲜明的惠阳“城市客厅”

南站片区概念规划效果图
包含哪些重点基础设施配套?
在基础建设方面,这里已落地总投资为78亿元的城市配套PPP项目,其中包括16条总长达3.7万米、总建设面积共计144万平方米的市政道路,可强力助推立体交通网络成型;还将有包括1所九年一贯制学校、1所大型综合医院在内的基础配套设施;以及包括亚公顶森林公园升级改造工程、古屋河河道整治工程在内的诸多基础建设的升级改造工程。

南站新城片区规划图
包含哪些产业布局?
在产业定位方面,南站新城将形成3+1+1模式的产业体系:立体生态与智慧产业并重,未来将以软件和电子信息服务业、文化创意产业、供应链为支柱,生命健康产业为引领,现代商贸服务业为综合配套;促进片区的绿色、高速、可持续发展的同时也提高整个惠州的电子行业、文化创业产业等智能制造业、服务业的竞争力与附加值。

南站片区概念规划效果图
未来的南站新城将会什么样子?
根据惠州乃至广东对于南站新城的整体规划,未来这里将会成为一座智慧产业新城。重点发展软件和电子信息服务业、文化创意产业、供应链、生命健康产业、现代商贸服务业五大产业,并将五大产业联动发展,为未来居住在南站新城的人提供充足的就业岗位及完善全面的配套设施,建立一种社区内即可完成工作、生活、购物、上学等行为的全新生活模式,打造城市、政务、企业、人四位一体的低碳高效生活方式,真正做到“一站式”生活。

南站新城片区规划图
8条轨道连通深惠 惠州南站独占4条
惠州南站新城将成为重要交通枢纽,打通南下北上、东进西出的快速通道。目前已有厦深高铁及捷运列车以每日超60班次往返于深惠两地之间,平均不到15分钟一班,27分钟可达深圳北站,45分钟直抵福田中心区。此外,深圳地铁14号线惠州段重点也设在惠州南站,将于年内动工建设。

厦深铁路的运营只是一个开端,深惠两地未来将有8条轨道实现对接,分别是已在建的赣深高铁、规划中的深惠城际轨道和5条规划对接深圳的地铁线,通过轨道交通对接,实现同城化。而这贯通深惠两地的8条轨道中,惠州南站独得其中4条。

(惠州城市轨道交通规划示意图,规划的5条对接深圳地铁线的轨道交通暂未公布)
PPP项目交通进展:
目前,惠州南站新城片区5条道路,即中山东路(经二十五路—爱民路)、经四路—经十路—经二十五路(大门埔路—爱民东路)、内环东路(白云路—西河西六路段)、金星大道(白云路—经二路)、大门埔路(经八路——内环东路)的勘探工作已经完成了72%,预计将在今年内动工建设。
目前南站新城片区主要在售楼盘为有惠州星河丹堤、碧桂园南站新城、惠阳雅居乐花园,均为惠湾片区关注度高,且超大体量、自身规划配套齐全的大社区,本周末老牛将带你实地勘察+置业咨询,并重点考察南站新城片区的现状和发展。
标签:
